25

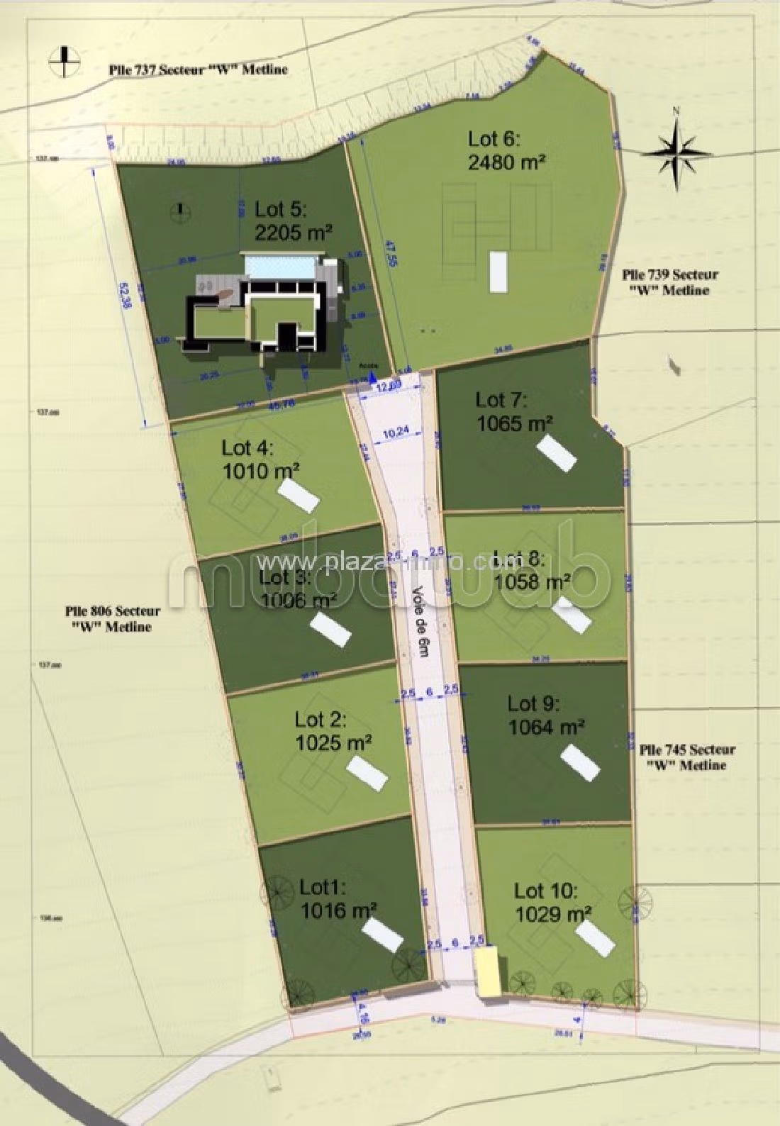
Terreno in vendita

Acquista il terreno ideale.

Vieni a vedere questo terreno in vendita .

Nelle vicinanze di negozio a meno di 50 metri, libreria a 100 metri, farmacia, fermata e mezzi di trasporto a 400 metri, edifici scolastici e superstore a 600 metri, spiaggia a 1.8 chilometro.

Caratteristiche generali

Tipo di proprietà

Terreno